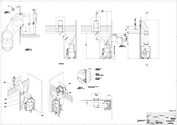
Goulotte

Goulotte grande section pour évacuation sacs de déchets vers un conteneur avec mise en sécurité du niveau haut.

Ce site utilise des cookies et vous donne le contrôle sur ce que vous souhaitez activer Tout accepter Personnaliser